Mietangebote in Paderborn und Umgebung

Charmante Dachgeschosswohnung in Wewer - modernisiert & ruhig gelegen

Charmante Dachgeschosswohnung in Wewer - modernisiert & ruhig gelegen

Ansicht
Küche
Küche
Bad
Bad
Diele
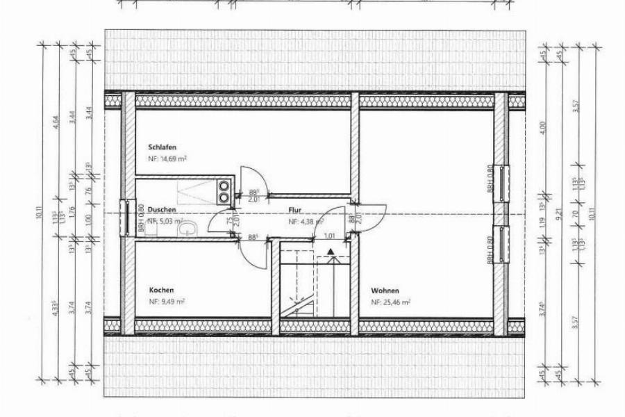
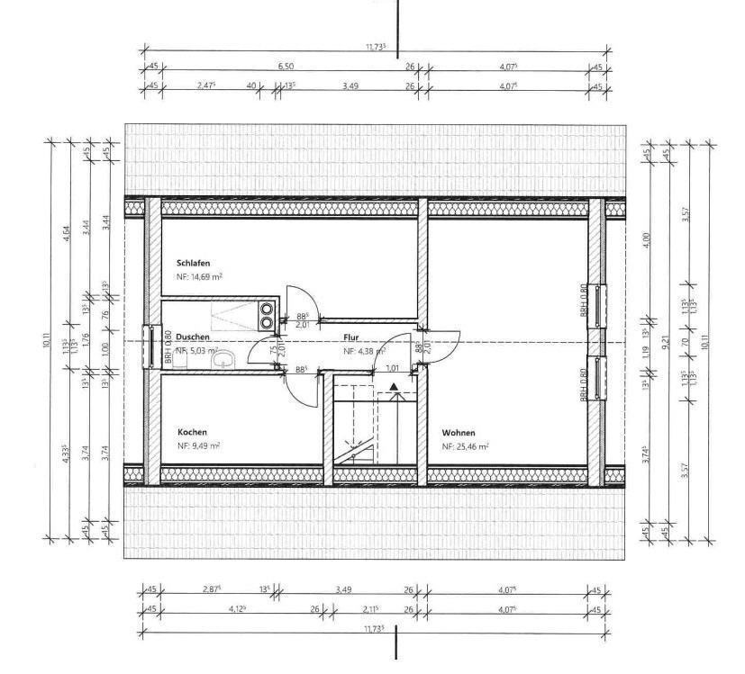
Grundriss
spacer.png
spacer.png
spacer.png
560,00 EUR
Kaltmiete
33106 Paderborn
Angebotsadresse
Übersicht
Objekt-Nr. 0-6289
Objektart Wohnung
Objekttyp keine Angabe
Vermarktung Miete/Pacht
Nutzung Wohnen
Land Deutschland
Bundesland Nordrhein-Westfalen
Region Paderborn
PLZ 33106
Ort Paderborn
Preise und Kosten
Kaltmiete 560,00 EUR
Nebenkosten 180,00 EUR
Heizkosten in der Warmmiete enthalten ja
Miete pro m² 9,48 EUR
Kaution 1.800,00 EUR
Außenstellplätze 1
Außenstellplatz Miete 40,00 EUR
Flächen
Wohnfläche ca. 59,05 m²
Wohneinheiten 3
Ausstattung
Zimmer 1,0
Schlafzimmer 1
Badezimmer 1
Küche Einbauküche
Boden Fliesen, Kunststoff, Laminat
Heizungsart Zentralheizung
Befeuerung Öl
Stellplatzart(en) Außenstellplatz
Wasch/Trockenraum ja
Unterkellert ja
Zustandsangaben
Baujahr 1966
Zustand modernisiert
Energieverbrauch
Ausstellungsdatum 28.08.2022
Ausweiserstellung ab dem 1.5.2014
Energieausweis Art Verbrauch
Energieeffiziensklasse C
Endenergieverbrauch kWh/(m²a) 98,6
Primärenergieträger Heizöl
Gebäudeart Wohngebäude
Befeuerung Öl
Sonstiges
verfügbar ab 01.05.2026

Objektbeschreibung

Lehmstich 12, DG, 33106 Paderborn

Diese gemütliche Dachgeschosswohnung befindet sich in einem gepflegten 3-Parteienhaus im beliebten Paderborner Ortsteil Wewer. Die Wohnung wurde im Jahr 2022 umfassend saniert; dabei wurde insbesondere das Badezimmer komplett erneuert und modern ausgestattet.

Die Wohnfläche verteilt sich auf eine helle Küche mit Einbauküche, ein modernes Duschbad, ein Schlafzimmer, ein Wohnzimmer sowie eine Diele. Die Bodenbeläge sind harmonisch aufeinander abgestimmt: Im Schlafzimmer und im Flur wurde Vinylboden verlegt, während die Küche mit einem pflegeleichten PVC-Belag ausgestattet ist

Zur Wohnung gehören ein Stellplatz und ein separater Kellerraum, der zusätzlichen Stauraum bietet. Außerdem steht ein gemeinschaftlicher Wasch- und Trockenkeller zur Verfügung. 

Stellplatz: 40,00 Euro
Gesamtkaltmiete: 600,00 Euro zuzüglich Nebenkosten

Die Maler- und Tapezierarbeiten liegen in der Verantwortung des Mieters. Beheizt wir das Objekt über eine Ölzentralheizung. Die Heiz- und Warmwasserkosten sind in den Nebenkosten enthalten. Tierhaltung ist nicht erwünscht.

Diese Wohnung eignet sich ideal für Singles oder Paare, die eine ruhige Wohnlage mit guter Anbindung und gepflegter Nachbarschaft schätzen.

Charmante Dachgeschosswohnung in Wewer - modernisiert & ruhig gelegen

-
Bus
-
Autobahn
-
Kindergarten
-
Grundschule
560,00 EUR
Kaltmiete
33106 Paderborn
Angebotsadresse
Anbieter kontaktieren
Hinweis: Diese Einwilligung können Sie jederzeit mit Wirkung für die Zukunft widerrufen, indem Sie eine E-Mail an Diese E-Mail-Adresse ist vor Spambots geschützt! Zur Anzeige muss JavaScript eingeschaltet sein! schicken.
Sicherheitscode
Angebot weiterleiten

An:

Von:

Sicherheitscode
Energieausweis
Energieausweis
Ausstellungsdatum 28.08.2022
Ausweiserstellung ab dem 1.5.2014
Energieausweis Art Verbrauch
Energieeffiziensklasse C
Endenergieverbrauch kWh/(m²a) 98,6
Primärenergieträger Heizöl
Gebäudeart Wohngebäude
Befeuerung Öl

Bade u. Henning Immobilien GmbH

 
 

Westernmauer 30
33098 Paderborn
Tel.: 05251 29062-0
Fax: 05251 29062-20
immobilien@bade-henning.de

 

Bürozeiten

 
 

Mo.: 9:00 - 12:30 und 15:00 - 17:00 Uhr
Di.: 9:00 - 12:30 und 15:00 - 17:00 Uhr
Mi.: 9:00 - 12:30
Do.: 9:00 - 12:30 und 15:00 - 17:00 Uhr
Fr.: 9:00 - 12:30