Mietangebote in Paderborn und Umgebung

Exklusiv wohnen in der Südstadt - moderne 3-Zimmerwohnung

Exklusiv wohnen in der Südstadt - moderne 3-Zimmerwohnung

Ansicht
Ansicht
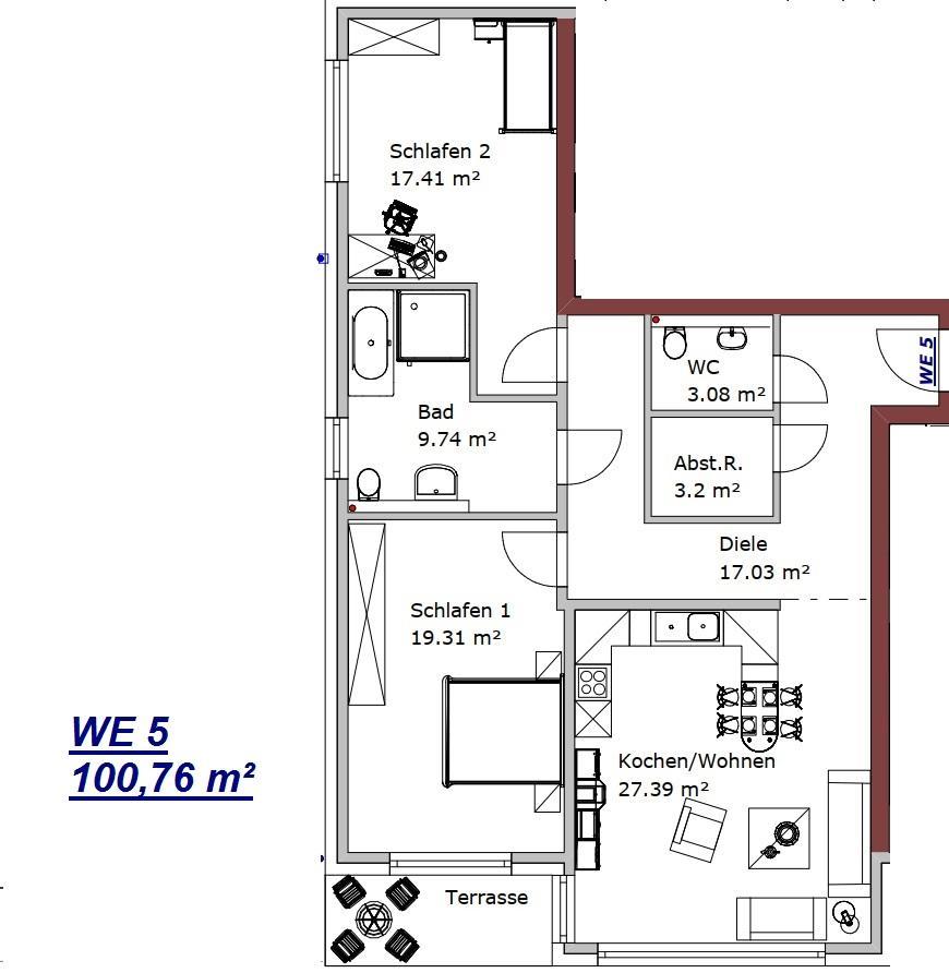
Grundriss
spacer.png
spacer.png
spacer.png
spacer.png
spacer.png
spacer.png
spacer.png
1.400,00 EUR
Kaltmiete
--
33098 Paderborn
Übersicht
Objekt-Nr. 0-6285
Objektart Wohnung
Objekttyp keine Angabe
Vermarktung Miete/Pacht
Nutzung Wohnen
Land Deutschland
Bundesland Nordrhein-Westfalen
Region Paderborn
PLZ 33098
Ort Paderborn
Preise und Kosten
Kaltmiete 1.400,00 EUR
Nebenkosten 310,00 EUR
Heizkosten in der Warmmiete enthalten ja
Miete pro m² 14,03 EUR
Kaution 2.940,00 EUR
Tiefgaragenplätze 1
Tiefgaragenplatz Miete 70,00 EUR
Flächen
Wohnfläche ca. 99,82 m²
Wohneinheiten 15
Ausstattung
Zimmer 3,0
Schlafzimmer 2
Badezimmer 1
Gäste-WC 1
Gäste WC ja
Küche Einbauküche
Boden Fliesen
Heizungsart Fußbodenheizung
Aufzug Personenaufzug
Stellplatzart(en) Tiefgarage
Unterkellert ja
Abstellraum ja
Fahrradraum ja
Zustandsangaben
Baujahr 2022
Zustand Erstbezug
Alter Neubau
Energieverbrauch
Ausweiserstellung ohne
Primärenergieträger Luft/Wasser Wämepumpe
Gebäudeart Wohngebäude
Sonstiges
verfügbar ab 01.05.2026

Objektbeschreibung

An der Schönen Aussicht 40, Whg. 5, EG, 33098 Paderborn

Dieses als KfW-40-Energieeffizienzhaus konzipierte Wohnhaus überzeugt durch seine sehr gute Lage in der Südstadt, eine ansprechende Architektur sowie eine moderne und durchdachte Grundrissgestaltung. Das Mehrfamilienhaus umfasst insgesamt 15 Wohneinheiten.

Die angebotene 3-Zimmerwohnung mit ca. 99,82 m² Wohnfläche befindet sich im Erdgeschoss und ist barrierefrei ausgeführt. Sie verfügt über ein großzügiges Schlafzimmer, ein weiteres Zimmer, das sich ideal als Kinder-, Gäste- oder Arbeitszimmer eignet, sowie zwei Bäder. Das Tageslichtbad ist mit einer ebenerdigen Dusche ausgestattet, zusätzlich steht ein separates Gästebad zur Verfügung.

Herzstück der Wohnung ist der offene Wohn- und Essbereich mit integrierter Küche, der durch seine helle Gestaltung ein angenehmes Wohnambiente bietet. Die vorhandene Einbauküche ist bereits im Mietpreis enthalten. Ergänzt wird die Raumaufteilung durch einen praktischen Abstellraum sowie eine Diele. Von der Wohnung aus haben Sie Zugang zur eigenen Terrasse, wie sie bei allen Erdgeschosswohnungen vorhanden ist. Auf der Etage befinden sich insgesamt sechs Wohneinheiten.

Die Ausstattung entspricht einem gehobenen Wohnstandard: Hochwertiges Design-Holzlaminat und Fliesen sorgen für eine wohnliche Atmosphäre, elektrische Rollläden erhöhen den Komfort. Die 3-fach verglasten Kunststofffenster sind wärmeeffizient und schalloptimiert.

Das Gebäude ist mit einem Aufzug ausgestattet, der alle Etagen inklusive des Kellergeschosses bequem erreichbar macht. Jeder Wohnung ist ein eigener Kellerraum zugeordnet, der auch Platz für eine Waschmaschine bietet. Für Fahrräder steht ein gesonderter Abstellplatz im Kellergeschoss zur Verfügung.

Die Beheizung erfolgt über eine Luft-Wärmepumpe in Kombination mit einer wasserführenden Fußbodenheizung. Zusätzlich ist das Haus mit einer Photovoltaikanlage ausgestattet; es besteht die Möglichkeit, den erzeugten Strom direkt zu beziehen.

Zur Wohnung gehört ein Tiefgaragenstellplatz, der verpflichtend mitvermietet wird. Jeder Stellplatz ist mit einer Elektroladestation (Wallbox) ausgestattet, sodass das Laden eines Elektrofahrzeugs bequem am eigenen Stellplatz möglich ist. Die Kosten für den Tiefgaragenstellplatz betragen 70,00 Euro monatlich.

Sollten wir Ihr Interesse geweckt haben, stehen wir Ihnen gerne für weitere Fragen zur Verfügung und freuen uns auf Ihre Kontaktaufnahme.

Tierhaltung ist nicht erwünscht.

Exklusiv wohnen in der Südstadt - moderne 3-Zimmerwohnung

-
Bus
-
Autobahn
-
Kindergarten
-
Grundschule
1.400,00 EUR
Kaltmiete
--
33098 Paderborn
Anbieter kontaktieren
Hinweis: Diese Einwilligung können Sie jederzeit mit Wirkung für die Zukunft widerrufen, indem Sie eine E-Mail an Diese E-Mail-Adresse ist vor Spambots geschützt! Zur Anzeige muss JavaScript eingeschaltet sein! schicken.
Sicherheitscode
Angebot weiterleiten

An:

Von:

Sicherheitscode

Bade u. Henning Immobilien GmbH

 
 

Westernmauer 30
33098 Paderborn
Tel.: 05251 29062-0
Fax: 05251 29062-20
immobilien@bade-henning.de

 

Bürozeiten

 
 

Mo.: 9:00 - 12:30 und 15:00 - 17:00 Uhr
Di.: 9:00 - 12:30 und 15:00 - 17:00 Uhr
Mi.: 9:00 - 12:30
Do.: 9:00 - 12:30 und 15:00 - 17:00 Uhr
Fr.: 9:00 - 12:30