Immobilien in Paderborn und Umgebung

Zentrumsnahe Maisonette-Eigentumswohnung in Bad Lippspringe - 3 Zimmer in kleiner Wohneinheit

Zentrumsnahe Maisonette-Eigentumswohnung in Bad Lippspringe - 3 Zimmer in kleiner Wohneinheit

Ansicht
Ansicht
Offene Küche mit Blick auf dem Balkon
Einbauküche
Einbauküche mit Essbereich
Wohnbereich
Schlafzimmer
Bad
Diele 1.Ebene
Treppen zur 2. Ebene
Schlafzimmer 2. Ebene
Ankleide 2. Ebene
Bad mit Badewanne und Dusche 2. Ebene
Grundriss 1. Ebene
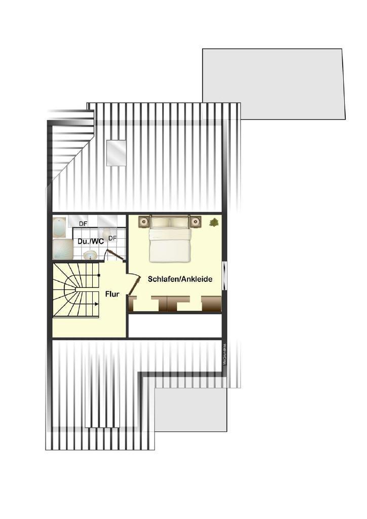
Grundriss 2. Ebene
spacer.png
spacer.png
spacer.png
spacer.png
spacer.png
315.000,00 EUR
Kaufpreis
33175 Bad Lippspringe
Angebotsadresse
Übersicht
Objekt-Nr. 0-6265
Objektart Wohnung
Objekttyp Maisonette
Vermarktung Kauf
Nutzung Wohnen
Land Deutschland
Bundesland Nordrhein-Westfalen
Region Paderborn
PLZ 33175
Ort Bad Lippspringe
Preise und Kosten
Kaufpreis 315.000,00 EUR
Kaufpreis pro m² 3.480,28 EUR
Maklerprovision 3,570 %
Außenstellplätze 1
Flächen
Wohnfläche ca. 90,51 m²
Wohneinheiten 4
Ausstattung
Zimmer 3,0
Schlafzimmer 1
Badezimmer 2
Balkon/Terrasse 1
Balkone 1
Küche Einbauküche
Boden Fliesen
Stellplatzart(en) Außenstellplatz
Wasch/Trockenraum ja
Unterkellert ja
Abstellraum ja
Zustandsangaben
Baujahr 2014
Zustand teil-/vollrenoviert
Energieverbrauch
Ausweiserstellung ohne
Gebäudeart Wohngebäude
Sonstiges
verfügbar ab sofort

Objektbeschreibung

Diese moderne Maisonette-Eigentumswohnung befindet sich in zentraler Lage von Bad Lippspringe in einem gepflegten 4-Parteienhaus, das 2014 erbaut wurde. Die Gesamtwohnfläche beträgt ca. 90,51 m², verteilt auf zwei Ebenen: Die erste Dachgeschossebene umfasst ca. 68,05 m², die zweite Ebene ca. 22,46 m².

Beim Betreten der Wohnung erwartet Sie eine offene Küche mit hochwertiger, neuwertiger Einbauküche, die bereits im Kaufpreis enthalten ist. Ein passender Esstisch in der Optik der Arbeitsplatte ergänzt das moderne Design perfekt. Von hier aus gelangen Sie direkt auf den großzügigen Balkon, der mit einer elektrischen Markise ausgestattet ist und so zusätzlichen Komfort bietet. Der angrenzende Wohnbereich schafft eine angenehme Wohnatmosphäre. In der Diele befindet sich ein praktischer Abstellraum. Ein Schlafzimmer sowie ein Tageslichtbad mit ebenerdiger Dusche runden das Raumangebot auf dieser Ebene ab.

Über eine elegante Treppe mit Natursteinbelag und integrierter Beleuchtung erreichen Sie die zweite Wohnebene. Hier erwarten Sie ein weiteres Tageslichtbad mit Badewanne und Dusche sowie ein Schlafzimmer mit angrenzendem Ankleideraum. Zusätzlich steht Ihnen auf dieser Ebene ein weiterer Abstellraum zur Verfügung ideal für zusätzlichen Stauraum.

Die Wohnung wurde frisch renoviert und gestrichen und steht somit zum sofortigen Einzug bereit. Die Ausstattung lässt keine Wünsche offen: Schlafräume mit hochwertigem Vinylboden, Wohnbereiche mit modernen Fliesen, dreifachverglaste Fenster mit elektrischen Rollläden sowie ein großzügiger Kellerraum mit Anschluss für Waschmaschine und Trockner. Ein gemeinschaftlicher Trockenraum steht ebenfalls zur Verfügung. Ein Stellplatz, der im Kaufpreis enthalten ist, erspart die Parkplatzsuche und bietet die Möglichkeit zur Installation einer Wallbox.
Das Objekt wird über eine Luftwärmepumpe beheizt, die als wasserführende Fußbodenheizung ausgelegt ist. Über dieses System erfolgt auch die Warmwasserbereitung.

Ein Energieausweis befindet sich derzeit in Bearbeitung.

Diese Maisonettewohnung überzeugt durch ihre zentrale Lage, die durchdachte Raumaufteilung und die hochwertige Ausstattung. Zwei Tageslichtbäder, ein Balkon mit elektrischer Markise, ein Ankleideraum, zwei Abstellräume sowie die im Kaufpreis enthaltene Einbauküche machen dieses Angebot besonders attraktiv.

Sollten wir Ihr Interesse geweckt haben, freuen wir uns auf Ihre Kontaktaufnahme. Sprechen Sie uns gerne an wir stehen Ihnen für weitere Informationen oder einen Besichtigungstermin zur Verfügung

Zentrumsnahe Maisonette-Eigentumswohnung in Bad Lippspringe - 3 Zimmer in kleiner Wohneinheit

-
Bus
-
Autobahn
-
Kindergarten
-
Grundschule
315.000,00 EUR
Kaufpreis
33175 Bad Lippspringe
Angebotsadresse
Anbieter kontaktieren
Hinweis: Diese Einwilligung können Sie jederzeit mit Wirkung für die Zukunft widerrufen, indem Sie eine E-Mail an Diese E-Mail-Adresse ist vor Spambots geschützt! Zur Anzeige muss JavaScript eingeschaltet sein! schicken.
Sicherheitscode
Angebot weiterleiten

An:

Von:

Sicherheitscode
Finanzierungsrechner
+
+
+
=
-
=
%
%

Ihr berechnetes Ergebnis:

=
=
=

Bade u. Henning Immobilien GmbH

 
 

Westernmauer 30
33098 Paderborn
Tel.: 05251 29062-0
Fax: 05251 29062-20
immobilien@bade-henning.de

 

Bürozeiten

 
 

Mo.: 9:00 - 12:30 und 15:00 - 17:00 Uhr
Di.: 9:00 - 12:30 und 15:00 - 17:00 Uhr
Mi.: 9:00 - 12:30
Do.: 9:00 - 12:30 und 15:00 - 17:00 Uhr
Fr.: 9:00 - 12:30