Wohnen in Steinheim-Bergheim - modernes Haus in ländlicher Umgebung


Ansicht

Anbieter

44067;Bade u. Henning;Immobilien GmbH;33098;Paderborn;Westernmauer 30;05251 29062-0;05251 29062-20;i
- -
- -
 Diese E-Mail-Adresse ist vor Spambots geschützt! Zur Anzeige muss JavaScript eingeschaltet sein!
 05251 29062-0

Angebot

Objekt-Nr.: 0-6251
Stand vom: 27.03.2026
ID: 1756
Haus
Einfamilienhaus
32839  Steinheim
Die vollständige Adresse der Immobilie erhalten Sie vom Anbieter.

Details

Übersicht
Objekt-Nr. 0-6251
Objektart Haus
Objekttyp Einfamilienhaus
Vermarktung Kauf
Nutzung Wohnen
Land Deutschland
Bundesland Nordrhein-Westfalen
Region Höxter
PLZ 32839
Ort Steinheim
Preise und Kosten
Kaufpreis 359.000,00 EUR
Kaufpreis pro m² 2.849,21 EUR
Maklerprovision 3,570 %
Außenstellplätze 1
Flächen
Wohnfläche ca. 126,00 m²
Grundstück 598,00 m²
Ausstattung
Zimmer 5,0
Schlafzimmer 3
Badezimmer 2
Balkon/Terrasse 1
Terrassen 1
Küche Einbauküche
Boden Fliesen, Teppich
Befeuerung elektrisch
Stellplatzart(en) Carport
Unterkellert nein
Zustandsangaben
Baujahr 2020
Zustand neuwertig
Energieverbrauch
Ausstellungsdatum 12.01.2026
Ausweiserstellung ab dem 1.5.2014
Energieausweis Art Verbrauch
Energieeffiziensklasse A
Endenergieverbrauch kWh/(m²a) 31,6
Primärenergieträger Strom
Gebäudeart Wohngebäude
Befeuerung elektrisch

Objektbeschreibung

Charmantes Einfamilienhaus mit Kamin und großem Garten in Steinheim-Bergheim

Willkommen in Ihrem neuen Zuhause! Dieses freistehende Einfamilienhaus in ruhiger Wohnlage von Steinheim-Bergheim vereint großzügiges Wohnen, moderne Technik und Gemütlichkeit ideal für Familien oder Paare, die Wert auf Komfort und Freiraum legen.

Das Haus bietet eine Wohnfläche von ca. 126 m² auf zwei Etagen und steht auf einem 598 m² großen Grundstück. Im Erdgeschoss empfängt Sie eine helle Diele, die über eine elegante Glas-Schiebetür in den weitläufigen Wohn- und Essbereich mit offener Küche führt. Hier sorgt ein Kamin für behagliche Wärme und eine gemütliche Atmosphäre. Der pflegeleichte Vinylboden unterstreicht den modernen Charakter des Raumes. Von hier aus gelangen Sie direkt auf die Terrasse und in den großzügigen Garten. Ein Arbeits- oder Gästezimmer, ein Tageslichtbad mit Dusche sowie ein Hauswirtschaftsraum mit Gartenzugang runden das Erdgeschoss ab. In den Nebenräumen sind moderne Fliesen verlegt.

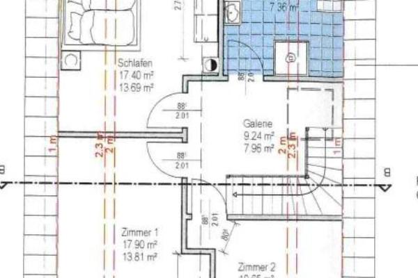
Ein besonderes Highlight bildet die offene Treppe, die Erd- und Dachgeschoss elegant miteinander verbindet und dem Haus eine moderne, großzügige Atmosphäre verleiht. Im Dachgeschoss stehen Ihnen drei gut geschnittene Schlafzimmer sowie ein weiteres Tageslichtbad mit Dusche und zwei Waschbecken zur Verfügung. Das Elternschlafzimmer ist mit Teppichboden ausgestattet, ein weiteres Zimmer verfügt bereits über einen hochwertigen Fliesenboden. Das dritte Zimmer ist mit einem modernen Vinylboden versehen und eignet sich ideal als Kinder- oder Arbeitszimmer.

Der große Garten ist freundlich angelegt und eröffnet vielfältige Möglichkeiten ob Spielbereich, Ruhezone oder Hobbygarten. Eine zweite Terrasse seitlich des Hauses lädt ebenfalls zum Verweilen ein. Für zusätzlichen Komfort sorgen ein Carport, weitere Stellplätze auf dem Grundstück sowie eine praktische Gartenhütte.

Die technische Ausstattung überzeugt: Neben dem Kamin im Wohnbereich sorgen moderne Infrarotheizkörper für angenehme Strahlungswärme und ein gesundes Raumklima. Ergänzt wird das Heizsystem durch eine Lüftungsanlage, die kontinuierlich frische Luft zuführt und gleichzeitig Energieverluste reduziert ideal für Allergiker und zur Vermeidung von Feuchtigkeit.
Ausstattung im Überblick:

Kamin im Wohnbereich
Infrarotheizkörper für effiziente Wärme
Lüftungsanlage für frische Luft und Energieeffizienz
Zwei Terrassen
Carport und zusätzliche Stellplätze
Gartenhütte inklusive

Interessiert? Vereinbaren Sie jetzt Ihren Besichtigungstermin und lassen Sie sich begeistern!

Lagebeschreibung

Das Einfamilienhaus befindet sich in ruhiger Wohnlage im Ortsteil Bergheim der Stadt Steinheim.Das Objekt befindet sich in einer wenig befahrenen Anliegerstraße mit gepflegter Nachbarschaft und überwiegend freistehenden Einfamilienhäusern. Die Umgebung ist geprägt von viel Grün, einer ländlich-idyllischen Atmosphäre und kurzen Wegen ins Umland.

Die Infrastruktur ist gut ausgebaut: Eine Bushaltestelle mit Anbindung an Steinheim und die umliegenden Orte liegt nur wenige Gehminuten entfernt. Der Bahnhof Steinheim mit Anschluss an den Regionalverkehr ist in etwa 10 Fahrminuten erreichbar. Einkaufsmöglichkeiten, Apotheken, Ärzte sowie Kindergärten und Schulen befinden sich im nahen Umfeld und sind bequem mit dem Auto oder Fahrrad erreichbar.

Für Familien und Naturliebhaber bietet die Lage zahlreiche Freizeitmöglichkeiten. Spazierwege, Spielplätze und das nahegelegene Schloss Vinsebeck laden zur Erholung ein. Auch kulturelle Angebote und Vereinsleben sind in Bergheim und Steinheim vielfältig vertreten.

Die Lage kombiniert die Ruhe des ländlichen Wohnens mit der Nähe zur Stadt und bietet damit ideale Voraussetzungen für ein komfortables und familienfreundliches Zuhause.

Sollten wir Ihr Interesse geweckt haben, zögern Sie nicht vereinbaren Sie noch heute einen Besichtigungstermin und entdecken Sie Ihr neues Zuhause!


Bilder


Ansicht
Ansicht Terrasse
Ansicht Garten
Essbereich
Wohnbereich
Bad mit Dusche Erdgeschoss
Treppenhaus / Diele
Diele Dachgeschoss
Schlafzimmer
Bad Dachgeschoss
Gästezimmer DG
Grundriss Erdgeschoss
Grundriss Dachgeschoss