seniorengerechte 2-Zimmerwohnung im Zentrum von Delbrück


Ansicht

Anbieter

44067;Bade u. Henning;Immobilien GmbH;33098;Paderborn;Westernmauer 30;05251 29062-0;05251 29062-20;i
- -
- -
 Diese E-Mail-Adresse ist vor Spambots geschützt! Zur Anzeige muss JavaScript eingeschaltet sein!
 05251 29062-0

Angebot

Objekt-Nr.: 0-6255
Stand vom: 01.12.2025
ID: 1678
Wohnung
keine Angabe
33129  Delbrück
Die vollständige Adresse der Immobilie erhalten Sie vom Anbieter.

Details

Übersicht
Objekt-Nr. 0-6255
Objektart Wohnung
Objekttyp keine Angabe
Vermarktung Miete/Pacht
Nutzung Wohnen
Land Deutschland
Bundesland Nordrhein-Westfalen
Region Paderborn
PLZ 33129
Ort Delbrück
Preise und Kosten
Kaltmiete 650,00 EUR
Nebenkosten 220,00 EUR
Miete pro m² 8,94 EUR
Kaution 1.330,00 EUR
Außenstellplatz Miete 15,00 EUR
Flächen
Wohnfläche ca. 72,70 m²
Wohneinheiten 24
Ausstattung
Zimmer 2,0
Schlafzimmer 1
Badezimmer 1
Balkon/Terrasse 1
Balkone 1
Küche Einbauküche
Boden Fliesen, Laminat
Heizungsart Zentralheizung
Befeuerung Gas
Aufzug Personenaufzug
Stellplatzart(en) Außenstellplatz
Rollstuhlgerecht ja
Barrierefrei ja
Wasch/Trockenraum ja
Unterkellert ja
Zustandsangaben
Baujahr 2004
Zustand gepflegt
Energieverbrauch
Ausstellungsdatum 13.03.2024
Ausweiserstellung ab dem 1.5.2014
Energieausweis Art Verbrauch
Energieeffiziensklasse B
Endenergieverbrauch kWh/(m²a) 71,0
mit Warmwasser ja
Primärenergieträger Erdgas
Gebäudeart Wohngebäude
Befeuerung Gas
Sonstiges
verfügbar ab ab sofort

Objektbeschreibung

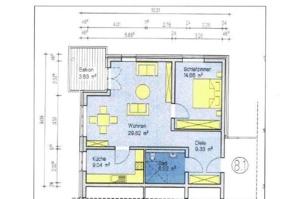
Diese 2-Zimmerwohnung befindet sich in einer Wohnanlage für "seniorengerechtes Wohnen" mit insgesamt 24 Wohneinheiten. Sie verfügt über eine Küche, ein Wohn-/Essbereich, ein Duschbad, ein Schlafzimmer sowie eine Diele. Vom Wohn-Essbereich haben Sie Zugang zum Balkon. Ihre Wohnung erreichen Sie bequem mit dem Fahrstuhl. Die vorhandene Einbauküche muss übernommen werden.

Des Weiteren gehört ein separater Kellerraum sowie ein Stellplatz zur Wohnung. Der Wasch- und Trockenkeller steht zur gemeinschaftlichen Nutzung zur Verfügung.

Die Wohnung ist mit Laminatboden und Fliesen ausgestattet. Malerarbeiten sind Sache des Mieters.

Die Heiz- und Warmwasserkosten sind in den Nebenkosten enthalten.

Stellplatz: 15,00 Euro
Gesamtkaltmiete 665,00 Euro zuzüglich Nebenkosten

Tierhaltung ist nicht erwünscht.


Bilder


Ansicht
Grundriss